1. Änderung des Bebauungsplans Nr. 20 „Berkhofer Weg II“; öffentliche Auslegung gem. § 3 Abs. 2 Baugesetzbuch (BauGB)

Der Rat der Gemeinde Buchholz (Aller) hat in seiner Sitzung am 29.03.2017 dem Entwurf der 1. Änderung des Bebauungsplans Nr. 20 „Berkhofer Weg II“ mit örtlicher Bauvorschrift und der Begründung zugestimmt und die öffentliche Auslegung gem. § 3 Abs. 2 BauGB beschlossen.

Die 1. Änderung des Bebauungsplans Nr. 20 „Berkhofer Weg II“ wird im vereinfachten Verfahren nach § 13 BauGB aufgestellt. Von einer Umweltprüfung nach § 2 Abs. 4 BauGB wird abgesehen.

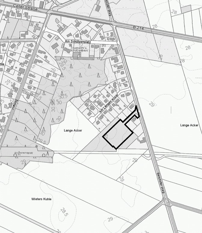
Der räumliche Geltungsbereich der 1. Änderung des Bebauungsplans Nr. 20 „Berkhofer Weg II“ liegt im Ortsteil Marklendorf südlich der B 214 und östlich der Straße Berkhofer Weg im Anschluss an das Baugebiet „Am Langen Acker“. Die Grenze des räumlichen Geltungsbereichs ist im folgenden Kartenausschnitt verdeutlicht:

Die öffentliche Auslegung des Entwurfs der 1. Änderung des Bebauungsplans Nr. 20 „Berkhofer Weg II“ mit örtlicher Bauvorschrift und der Begründung gem. § 3 Abs. 2 BauGB erfolgt von Dienstag, den 18. April 2017, bis einschließlich Donnerstag, den 18.  Mai 2017, in der Gemeindeverwaltung im Rathaus (Zimmer 36) in Schwarmstedt, Am Markt 1, während folgender Zeiten:

Montag bis Freitag: 8.30 bis 12.00 Uhr

Donnerstag: außerdem 14.00 bis 18.00 Uhr

und nach telefonischer Vereinbarung (Tel.: 0 50 71 / 8 09 - 36) auch zu anderen Zeiten.

Während der öffentlichen Auslegung können Stellungnahmen zum Entwurf der 1. Änderung Bebauungsplans Nr. 20 „Berkhofer Weg II“ mit örtlicher Bauvorschrift  und der Begründung schriftlich oder mündlich zur Niederschrift bei der Gemeinde Buchholz (Aller) abgeben.

Hinweise:

Nicht fristgerecht abgegebene Stellungnahmen können bei der Beschlussfassung über die 1. Änderung und Ergänzung des Bebau­ungsplans Nr. 21 „Schwarzer Berg“ unberücksichtigt bleiben.

Ein Antrag nach § 47 der Verwaltungsgerichtsordnung (Normen­kontrolle) ist unzulässig, soweit mit ihm Einwendungen geltend gemacht werden, die vom Antragsteller im Rahmen der Auslegung nicht oder verspätet geltend gemacht wurden, aber hätten geltend gemacht werden können.

Schwarmstedt,  den  04.04.2017                                                                       

GEMEINDE BUCHHOLZ (ALLER)
Der Gemeindedirektor
gez. Gehrs

   
buchtipp-2026-04-18Die Samtgemeindebücherei im Uhle-Hof empfiehlt in dieser Woche folgende neue Bücher für Erwachsene:

mehr...
buchtipp-2026-04-25Die Samtgemeindebücherei im Uhle-Hof empfiehlt in dieser Woche folgende neue Bücher für Kinder ab 10 Jahren:

mehr...
buchtipp-artikel-2026-03-osternDie Samtgemeindebücherei Schwarmstedt hat in den Osterferien geöffnet. Lediglich an den beiden Donnerstagen leibt die Bücherei geschlossen.

mehr...
buchtipp-2026-03-21Die Samtgemeindebücherei im Uhle-Hof empfiehlt in dieser Woche folgende neue Bücher für Kinder ab 7 Jahren:

mehr...
buchtipp-2026-03-14Die Samtgemeindebücherei im Uhle-Hof empfiehlt in dieser Woche folgende neue Bücher für Erwachsene:

mehr...
buchtipp-2026-03-07Die Samtgemeindebücherei im Uhle-Hof empfiehlt in dieser Woche folgende Pocket- und Book-Tonies für Kinder ab 5 Jahren:

mehr...
buchtipp-2026-02-28Die Samtgemeindebücherei im Uhle-Hof empfiehlt in dieser Woche folgende neue Romane für Erwachsene:

mehr...
buchtipp-2026-02-21Die Samtgemeindebücherei im Uhle-Hof empfiehlt in dieser Woche folgende neue Bücher für Kinder ab 8 Jahren:

mehr...
buchtipp-2026-02-07Die Samtgemeindebücherei im Uhle-Hof empfiehlt in dieser Woche folgende neue Romane für Erwachsene:

mehr...
buchtipp-2026-01-24Die Samtgemeindebücherei im Uhle-Hof empfiehlt in dieser Woche folgende neue Romane für Erwachsene:

mehr...
buchtipp-2026-01-17Die Samtgemeindebücherei im Uhle-Hof empfiehlt in dieser Woche folgende neue Bilderbücher für Kinder ab 3 Jahren:

mehr...
buchtipp-2026-01-10Die Samtgemeindebücherei im Uhle-Hof empfiehlt in dieser Woche folgende neue Romane für Erwachsene:

mehr...
buchtipp-artikel-2021-12-fDie Samtgemeindebücherei Schwarmstedt bleibt wegen Betriebsferien und anschließender Inventur vom 22. Dezember 2025 bis einschließlich 06. Januar 2026 geschlossen. Die letzte Möglichkeit zur Ausleihe ist am Freitag, den 19.12.2025 und die erste Ausleihe wird am Donnerstag, den 08.01.2026 wieder möglich sein.

mehr...
buchtipp-2025-12-20Die Samtgemeindebücherei im Uhle-Hof empfiehlt in dieser Woche folgende neue Weihnachtsromane für Frauen:

mehr...
buchtipp-2025-12-13Die Samtgemeindebücherei im Uhle-Hof empfiehlt in dieser Woche folgende neue Weihnachtsbilderbücher für Kinder ab 4 Jahren:

mehr...
buchtipp-2025-11-29Die Samtgemeindebücherei im Uhle-Hof empfiehlt in dieser Woche folgende neue Bilderbücher für Kinder ab 18 Monaten:

mehr...
buchtipp-2025-11-22Die Samtgemeindebücherei im Uhle-Hof empfiehlt in dieser Woche folgende neue Bücher für Erwachsene:

mehr...
buchtipp-2025-11-15Die Samtgemeindebücherei im Uhle-Hof empfiehlt in dieser Woche folgende neue Bücher für Kinder ab 8 Jahren:

mehr...
buchtipp-2025-11-08Die Samtgemeindebücherei im Uhle-Hof empfiehlt in dieser Woche folgende neue Bücher für Erwachsene:

mehr...
buchtipp-2025-11-01Die Samtgemeindebücherei im Uhle-Hof empfiehlt in dieser Woche folgende neue Bilderbücher für Kinder ab 3 Jahren:

mehr...
buchtipp-2025-10-25Die Samtgemeindebücherei im Uhle-Hof empfiehlt in dieser Woche folgende neue Bücher für Erwachsene:

mehr...
buchtipp-2025-08-30Die Samtgemeindebücherei im Uhle-Hof empfiehlt in dieser Woche folgende neue Bücher für Leseanfänger der 1. und 2. Klassen aus der Serie Bücherhelden:

mehr...
buchtipp-2025-08-15Die Samtgemeindebücherei im Uhle-Hof empfiehlt in dieser Woche folgende neue Bilderbücher für Kinder ab 4 Jahren:

mehr...
buchtipp-2025-08-08Die Samtgemeindebücherei im Uhle-Hof empfiehlt in dieser Woche folgende neue Bücher für Erwachsene:

mehr...
buchtipp-2024-01-27Die Samtgemeindebücherei im Uhle-Hof empfiehlt in dieser Woche folgende neue Bücher für Kinder ab 9 Jahren:

mehr...
buchtipp-artikel-2024-01-oeffnungsAb dem 01.Februar 2024 gelten für die Samtgemeindebücherei Schwarmstedt vorrübergehend für ca. 4-6 Monate neue Öffnungszeiten: Montag geschlossen, Dienstag 15-18 Uhr, Mittwoch geschlossen, Donnerstag 15-18 Uhr und Freitag geschlossen.

mehr...
   

Kontakt Rathaus  

Samtgemeinde Schwarmstedt
Am Markt 1
29690 Schwarmstedt

Tel. (05071) 809 - 0
Fax. (0511) 93 69 717 62
E-Mail: rathaus@schwarmstedt.de

thumbnail Feedback, Mängelmeldung
thumbnail Terminbuchung
   

Öffnungszeiten  

Öffnungszeiten Bücherei

Montag 15-18 Uhr
Dienstag 15-18 Uhr
Mittwoch geschlossen
Donnerstag 15-19 Uhr
Freitag 9-12 Uhr

Tel. (05071) 800-400

eMail: buecherei@schwarmstedt.de

   

Veranstaltungskalender  

   

Aktuelles  

27.04.2026
aktuelles-2026-05-sporthbuchsanSanierung gestartet: Sporthalle Buchholz (Aller) voraussichtlich ab Mitte...mehr...
24.04.2026
aktuelles-2026-05-klimaschutzMeilenstein für den Klimaschutz: Samtgemeinde Schwarmstedt erhält 250.000...mehr...
20.04.2026
aktuelles-2026-05-hallenbad-ecErfolgsmodell Kartenzahlung: Schwarmstedter Hallenbad setzt auf bargeldlosen...mehr...
20.04.2026
bekanntmachung-gilten-2026-05-ratDie nächste Sitzung des Bau- und Wegeausschusses der Gemeinde Gilten - als...mehr...
17.04.2026
hallenbadschliessung-am-21-04-2026-ab-15-00-uhrAus personellen Gründen muss das Hallenbad am mehr...
09.04.2026
bekanntmachung-buchholz-2026-04-ratDie nächste Sitzung des Rates der Gemeinde Buchholz (Aller), als...mehr...
   
   

 

  Samtgemeinde Schwarmstedt

Postfach 1154
29684 Schwarmstedt

Hausanschrift:
Rathaus
Am Markt 1
29690 Schwarmstedt

Vorsprache nur nach Terminvereinbarung

Telefon (Zentrale): 05071/809-0
Telefon (Bürgerbüro): 05071/809-99
E-Mail: rathaus@schwarmstedt.de
Kontakt (Was erledige ich wo?)

Kontodaten der Samtgemeindekasse

Sprechzeiten Bürgerbüro
(Meldeamt, Ausweise/Pässe, Fundbüro, Kfz-Zulassung, Gewerbe/Gaststätten):
Montag, Mittwoch & Freitag 08:30 – 14:00 Uhr
Dienstag & Donnerstag 08:30 – 12:00 Uhr 
  13:00 – 18:30 Uhr


Sprechzeiten Sozialamt
(Bürgergeld, Sozialhilfe, Wohngeld, Asylbewerberleistungen, Unterbringung):
Montag – Freitag, 10:00 – 12:00 Uhr
Donnerstag 16:00 – 18:00 Uhr
   
allgemeine Sprechzeiten:
Montag – Freitag, 08:30 – 12:00 Uhr
Montag – Mittwoch, 13:00 – 15:00 Uhr
Donnerstag 14:00 – 18:00 Uhr
   
 
Impressum Datenschutz Barrierefreiheit Quellenangaben 
Wir benutzen Cookies
Wir nutzen Cookies auf unserer Website. Einige von ihnen sind essenziell für den Betrieb der Seite, während andere uns helfen, diese Website und die Nutzererfahrung zu verbessern (Tracking Cookies). Sie können selbst entscheiden, ob Sie die Cookies zulassen möchten.
Bitte beachten Sie, dass bei einer Ablehnung womöglich nicht mehr alle Funktionalitäten der Seite zur Verfügung stehen.